Artikelen
Dakconstructie
Het dak van een gebouw is een essentieel onderdeel dat bescherming biedt tegen weersinvloeden en andere elementen. Verschillende dak toebehoren spelen een cruciale rol bij het waarborgen van de functionaliteit en duurzaamheid van een dakconstructie. Hieronder volgt een overzicht van enkele belangrijke daktoebehoren:
Lood in de bouwsector
Lood is een veelgebruikt materiaal bij dakconstructies. Het wordt gebruikt om waterdichte afdichtingen te creëren rondom schoorstenen, dakramen en andere openingen in het dak. Loodslabben voorkomen dat water naar binnen sijpelt en beschermen zo de onderliggende materialen.
Onderdak
Een onderdak, ook wel dakscherm genoemd, is een laag die onder de dakbedekking wordt geplaatst. Het biedt extra bescherming tegen water, wind en stof. Het onderdak zorgt ervoor dat eventueel binnendringend water niet direct in contact komt met de dakconstructie, waardoor de levensduur van het dak wordt verlengd.
Dampscherm
Een dampscherm is een materiaal dat wordt gebruikt om de isolatie te beschermen tegen dampdiffusie. Het voorkomt dat vochtige lucht in het dak dringt en condenseert, wat kan leiden tot vochtschade en schimmelvorming. Het dampscherm wordt aan de warme zijde van het dak geplaatst, meestal aan de binnenkant van de isolatie.
Dakranden
De dakrand, ook wel daklijst genoemd, bevindt zich aan de rand van het dak. Het beschermt de dakconstructie tegen weersinvloeden en zorgt voor een nette afwerking. De dakrand kan verschillende vormen en materialen hebben, zoals hout, PVC of aluminium, en kan tevens dienen als bevestigingspunt voor de dakgoten.
Ventileren
Ventilatie is van groot belang om een gezond binnenklimaat in het gebouw te behouden. Dakventilatie zorgt voor de afvoer van vochtige lucht, wat de vorming van condens en schimmel voorkomt. Het kan worden gerealiseerd met behulp van dakventilatiepannen, nokventilatie of andere ventilatiesystemen.
Hout als basiscontructie
Hout wordt vaak gebruikt als basisstructuur voor daken, zoals dakspanten en dakbeschot. Het is een duurzaam en stevig materiaal dat de constructie ondersteunt en bestand is tegen verschillende belastingen. Daarnaast wordt hout ook gebruikt voor de afwerking van dakgoten, dakramen en andere decoratieve elementen.
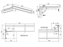
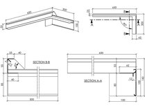
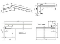
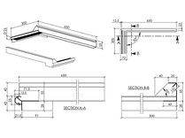
Hoekkeperrol
Ondernokken zijn extra nokconstructies die worden gebruikt bij dakconstructies met meerdere dakhellingen. Ze versterken de nok en zorgen voor een stabiele en stevige verbinding tussen de verschillende dakhellingen. Degelijke hoekkeperrol is essentieel voor de structurele integriteit en waterdichtheid van het dak.
Levensduur
Het gebruik van hoogwaardige daktoebehoren is van groot belang om een duurzaam, waterdicht en goed geventileerd dak te realiseren. Door te investeren in kwaliteitsmaterialen en professionele installatie kan de levensduur van het dak aanzienlijk worden
Het dak van een gebouw is een essentieel onderdeel dat bescherming biedt tegen weersinvloeden en andere elementen. Verschillende dak toebehoren spelen een cruciale rol bij het waarborgen van de functionaliteit en duurzaamheid van een dakconstructie. Hieronder volgt een overzicht van enkele belangrijke daktoebehoren:
Lood in de bouwsector
Lood is een veelgebruikt materiaal bij dakconstructies. Het wordt gebruikt om waterdichte afdichtingen te creëren rondom schoorstenen, dakramen en andere openingen in het dak. Loodslabben voorkomen dat water naar binnen sijpelt en beschermen zo de onderliggende materialen.
Onderdak
Een onderdak, ook wel dakscherm genoemd, is een laag die onder de dakbedekking wordt geplaatst. Het biedt extra bescherming tegen water, wind en stof. Het onderdak zorgt ervoor dat eventueel binnendringend water niet direct in contact komt met de dakconstructie, waardoor de levensduur van het dak wordt verlengd.
Dampscherm
Een dampscherm is een materiaal dat wordt gebruikt om de isolatie te beschermen tegen dampdiffusie. Het voorkomt dat vochtige lucht in het dak dringt en condenseert, wat kan leiden tot vochtschade en schimmelvorming. Het dampscherm wordt aan de warme zijde van het dak geplaatst, meestal aan de binnenkant van de isolatie.
Dakranden
De dakrand, ook wel daklijst genoemd, bevindt zich aan de rand van het dak. Het beschermt de dakconstructie tegen weersinvloeden en zorgt voor een nette afwerking. De dakrand kan verschillende vormen en materialen hebben, zoals hout, PVC of aluminium, en kan tevens dienen als bevestigingspunt voor de dakgoten.
Ventileren
Ventilatie is van groot belang om een gezond binnenklimaat in het gebouw te behouden. Dakventilatie zorgt voor de afvoer van vochtige lucht, wat de vorming van condens en schimmel voorkomt. Het kan worden gerealiseerd met behulp van dakventilatiepannen, nokventilatie of andere ventilatiesystemen.
Hout als basiscontructie
Hout wordt vaak gebruikt als basisstructuur voor daken, zoals dakspanten en dakbeschot. Het is een duurzaam en stevig materiaal dat de constructie ondersteunt en bestand is tegen verschillende belastingen. Daarnaast wordt hout ook gebruikt voor de afwerking van dakgoten, dakramen en andere decoratieve elementen.
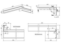
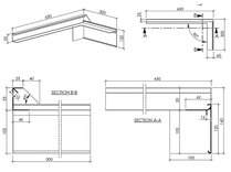
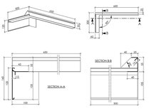
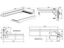
Hoekkeperrol
Ondernokken zijn extra nokconstructies die worden gebruikt bij dakconstructies met meerdere dakhellingen. Ze versterken de nok en zorgen voor een stabiele en stevige verbinding tussen de verschillende dakhellingen. Degelijke hoekkeperrol is essentieel voor de structurele integriteit en waterdichtheid van het dak.
Levensduur
Het gebruik van hoogwaardige daktoebehoren is van groot belang om een duurzaam, waterdicht en goed geventileerd dak te realiseren. Door te investeren in kwaliteitsmaterialen en professionele installatie kan de levensduur van het dak aanzienlijk worden



























